AW-16942277428 Woodland Oak Cabin Kit
Schutt Log Homes & Mill Works      816-506-5713

The Woodland Oak Cabin Kit

1700 square feet

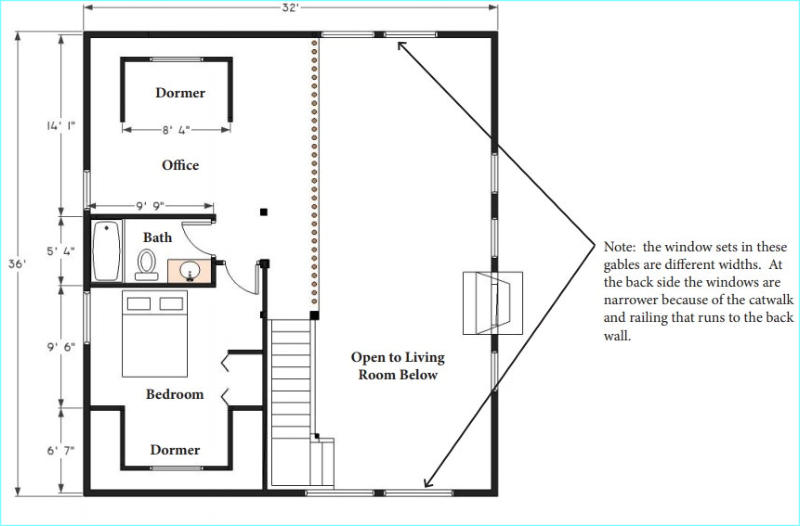
The 1700 square foot Woodland Oak cabin kit is a perfect mid size cabin kit. This kit features a large first floor master bedroom and master bath. The loft features a generous office space, a second bedroom and it’s own bath. The covered front porch gives this cabin a warm and inviting look. This home kit has covered porches on three sides and a convienent entry into the laundry room. The over-sized dormers allow lots of natural light in the bedroom and office. No dark spaces in this home. This kit can be built on a slab or basement.
Schutt Log Homes & Mill Works

The Woodland Oak Cabin Kit

1700 square feet

Schutt Log Homes & Mill Works      816-506-5713
The 1700 square foot Woodland Oak cabin kit is a perfect mid size cabin kit. This kit features a large first floor master bedroom and master bath. The loft features a generous office space, a second bedroom and it’s own bath. The covered front porch gives this cabin a warm and inviting look. This home kit has covered porches on three sides and a convienent entry into the laundry room. The over-sized dormers allow lots of natural light in the bedroom and office. No dark spaces in this home. This kit can be built on a slab or basement.
Schutt Log Homes & Mill Works