AW-16942277428 Riverside Oak Cabin Kit
Schutt Log Homes & Mill Works      816-506-5713

The Riverside Oak Cabin Kit-

1800 square feet and 2100 Square feet

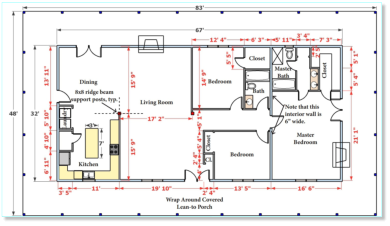
The Riverside Oak log cabin kit comes in 2 sizes. The 2100 square foot kit has a larger livingroom area. The rest of the cabins are the same. This kit cabin has 2 bedrooms and 2 full baths on the main floor and plenty of space for an additional bedroom upstairs. With a full 10’ wrap around porch there is always a place to sit in the shade .
1800 square foot Riverside
2100 square foot Riverside
Schutt Log Homes & Mill Works
2100 sf

Hybrid Framed Structures

What’s Included

What Will Be Needed Subfloor System Insulation HVAC Plumbing Electrical Doors Windows
 Ø Ø Ø Ø Ø Ø
Roofing Metal or Shingles Cabinets Plumbing Fixtures Foundation Fasteners Treated Lumber
Ø Ø Ø Ø Ø Ø
Post and Beam Manual Ø 8” x 8” Post Ø 8” x 12” Headers Ø 8” x 12” Girders Ø 8” x 10” / 6” x 8” Collar Ties Ø 6” x 6” Sling Braces Ø 8” x 10” / 8” x 12” Ridge Beam Ø 4” x 8” / 6” x 10” Rafters Ø 2” x 6” Wall Girts Ø Interior Log Siding Ø Exterior Log Siding Ø 4” x 12” Stair Stringer Ø 4” x 12” Stair Treads Ø 6” x 6” Railing Post ·
8” x 10” Porch Headers 4” x 8” Porch Rafters 2” x 10” Fascia Þ” x 5” Oak Shiplap Ceiling Þ” x 8” Oak Boards Þ” X 2” Battens 4” x 8” / 4” x 10” Floor Joist (2 nd floor) Þ” x 3” Oak Trim Þ” x 2” Oak Trim Þ” x 5” Oak Trim 2” x 6” Spindles 2” x 6” Wall Framing
Ø Ø Ø Ø Ø Ø Ø Ø Ø Ø Ø Ø

The Riverside Oak Cabin Kit

The Riverside Oak log cabin kit comes in 2 sizes. The 2100 square foot kit has a larger livingroom area. The rest of the cabins are the same. This kit cabin has 2 bedrooms and 2 full baths on the main floor and plenty of space for an additional bedroom upstairs. With a full 10’ wrap around porch there is always a place to sit in the shade .
1800 sf
2100 sf
Schutt Log Homes & Mill Works      816-506-5713
Schutt Log Homes & Mill Works
2100 sf