AW-16942277428 Homestead cabin kit 3000 sq ft
Schutt Log Homes & Mill Works      816-506-5713
Schutt Log Homes & Mill Works

Homestead Cabin Kit

3000 square feet

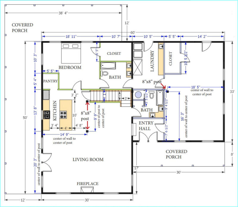
This Homestead cabin kit features a 2490 square foot main floor and a fully functional 600 square foot loft. One highlight of this home is a large 20’ x 30’ living room and a spacious 13’8” x 15’ kitchen with a large pantry. The kitchen is open to the living room making a great place to entertain. This kit home has 2 large bedrooms and 2 full baths on the main floor and a 3rd bedroom and full bath in the loft. The 12’ covered porches on 2 sides are plenty of space for outdoor living. The 8’ covered front porch creates the perfect entry in to your dream home. This floor plan can be customized to exactly what you want it to be. We make any changes you would like in order to make this home your log home dreams. This kit can be build on a slab, basement or crawl space.
Homestead cabin Kit Homestead cabin Kit Homestead cabin Kit
Schutt Log Homes & Mill Works

Homestead Cabin Kit

3000 square feet

This Homestead cabin kit features a 2490 square foot main floor and a fully functional 600 square foot loft. One highlight of this home is a large 20’ x 30’ living room and a spacious 13’8” x 15’ kitchen with a large pantry. The kitchen is open to the living room making a great place to entertain. This kit home has 2 large bedrooms and 2 full baths on the main floor and a 3rd bedroom and full bath in the loft. The 12’ covered porches on 2 sides are plenty of space for outdoor living. The 8’ covered front porch creates the perfect entry in to your dream home. This floor plan can be customized to exactly what you want it to be. We make any changes you would like in order to make this home your log home dreams. This kit can be build on a slab, basement or crawl space.
Homestead cabin Kit Homestead cabin Kit Homestead cabin Kit Schutt Log Homes & Mill Works      816-506-5713