AW-16942277428 1200 sq ft Pioneer Cabin Kit

Pioneer Cabin Kit

1200 square feet

Schutt Log Homes & Mill Works      816-506-5713
Schutt Log Homes & Mill Works
Pioneer Cabin Kit Pioneer Cabin Kit Pioneer Cabin Kit Pioneer Cabin Kit Pioneer Cabin Kit Pioneer Cabin Kit Pioneer Cabin Kit Pioneer Cabin Kit Pioneer Cabin Kit Pioneer Cabin Kit Pioneer Cabin Kit Pioneer Cabin Kit
Option B
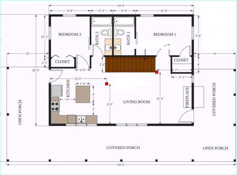
Option A
This cozy 1200 sq ft Pioneer cabin kit is your perfect escape. With 900 sq ft on the main floor, it offers plenty of space to spread out and relax. Imagine movie nights in the open-concept living and kitchen area – it's ideal for entertaining friends or just unwinding with family. Head upstairs to the charming 300 sq ft loft, perfect for a guest room, play area, or even a home office! Plus, two full baths on the main floor offer convenience for everyone. And the best part? There's room for another bedroom upstairs if your family grows! Unwind on the inviting covered porches – one in front and one on the side. Whether you're sipping your morning coffee or stargazing at night, these porches will be your favorite spot to soak up the beauty of nature. The Pioneer Cabin kit is the perfect combination of affordability and comfort, making it ideal for families or anyone seeking a cozy retreat. This cabin has everything you need to create lasting memories!

Pioneer Cabin Kit

1200 square feet

Schutt Log Homes & Mill Works      816-506-5713
Pioneer Cabin Kit Pioneer Cabin Kit Pioneer Cabin Kit Pioneer Cabin Kit Pioneer Cabin Kit Pioneer Cabin Kit Pioneer Cabin Kit Pioneer Cabin Kit
Schutt Log Homes & Mill Works
This cozy 1200 sq ft Pioneer cabin kit is your perfect escape. With 900 sq ft on the main floor, it offers plenty of space to spread out and relax. Imagine movie nights in the open-concept living and kitchen area – it's ideal for entertaining friends or just unwinding with family. Head upstairs to the charming 300 sq ft loft, perfect for a guest room, play area, or even a home office! Plus, two full baths on the main floor offer convenience for everyone. And the best part? There's room for another bedroom upstairs if your family grows! Unwind on the inviting covered porches – one in front and one on the side. Whether you're sipping your morning coffee or stargazing at night, these porches will be your favorite spot to soak up the beauty of nature. The Pioneer Cabin kit is the perfect combination of affordability and comfort, making it ideal for families or anyone seeking a cozy retreat. This cabin has everything you need to create lasting memories!
Pioneer Cabin Kit Pioneer Cabin Kit Pioneer Cabin Kit Pioneer Cabin Kit
Option B
Option A