AW-16942277428 1000 sq ft Hunting cabin Kit

1000 Square Foot Hunting Cabin Kit

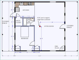
The 1000 square foot Oak Hunting Cabin Kit is designed to be both versatile and straightforward, making it perfect for full-time living, weekend retreats, or as a base camp for hunting trips. Measuring 32.5' x 32' with additional 8' front and rear porches, the cabin offers a customizable layout that can accommodate 1, 2, or 3 bedrooms, depending on your needs. The interior features vaulted ceilings with exposed timber beams, enhancing the rustic charm and creating a spacious feel. This cabin can be constructed on a slab, basement, or crawl space, providing flexibility for various site conditions. Its simple construction process makes it accessible even for novice builders, ensuring an easy and enjoyable building experience. Ideal for those seeking a cozy yet functional space, this kit combines affordability with aesthetic appeal.
Schutt Log Homes & Mill Works      816-506-5713
Schutt Log Homes & Mill Works

1000 Square Foot Hunting Cabin Kit

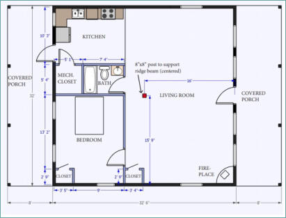
The 1000 square foot Oak Hunting Cabin Kit is designed to be both versatile and straightforward, making it perfect for full-time living, weekend retreats, or as a base camp for hunting trips. Measuring 32.5' x 32' with additional 8' front and rear porches, the cabin offers a customizable layout that can accommodate 1, 2, or 3 bedrooms, depending on your needs. The interior features vaulted ceilings with exposed timber beams, enhancing the rustic charm and creating a spacious feel. This cabin can be constructed on a slab, basement, or crawl space, providing flexibility for various site conditions. Its simple construction process makes it accessible even for novice builders, ensuring an easy and enjoyable building experience. Ideal for those seeking a cozy yet functional space, this kit combines affordability with aesthetic appeal.
Schutt Log Homes & Mill Works      816-506-5713
Schutt Log Homes & Mill Works